Elegante bifamiliare con giardino a Taggì di sotto

Villafranca Padovana loc. Taggì di Sotto (PD) In posizione centrale e servita, proponiamo in vendita una porzione indipendente di villa bifamiliare di prossima realizzazione, progettata con particolare attenzione al comfort abitativo e al risparmio energetico.
L’abitazione è dotata di ingresso autonomo e di un ampio giardino esclusivo di circa 300 mq, che circonda l’immobile su tre lati, garantendo privacy e vivibilità degli spazi esterni.

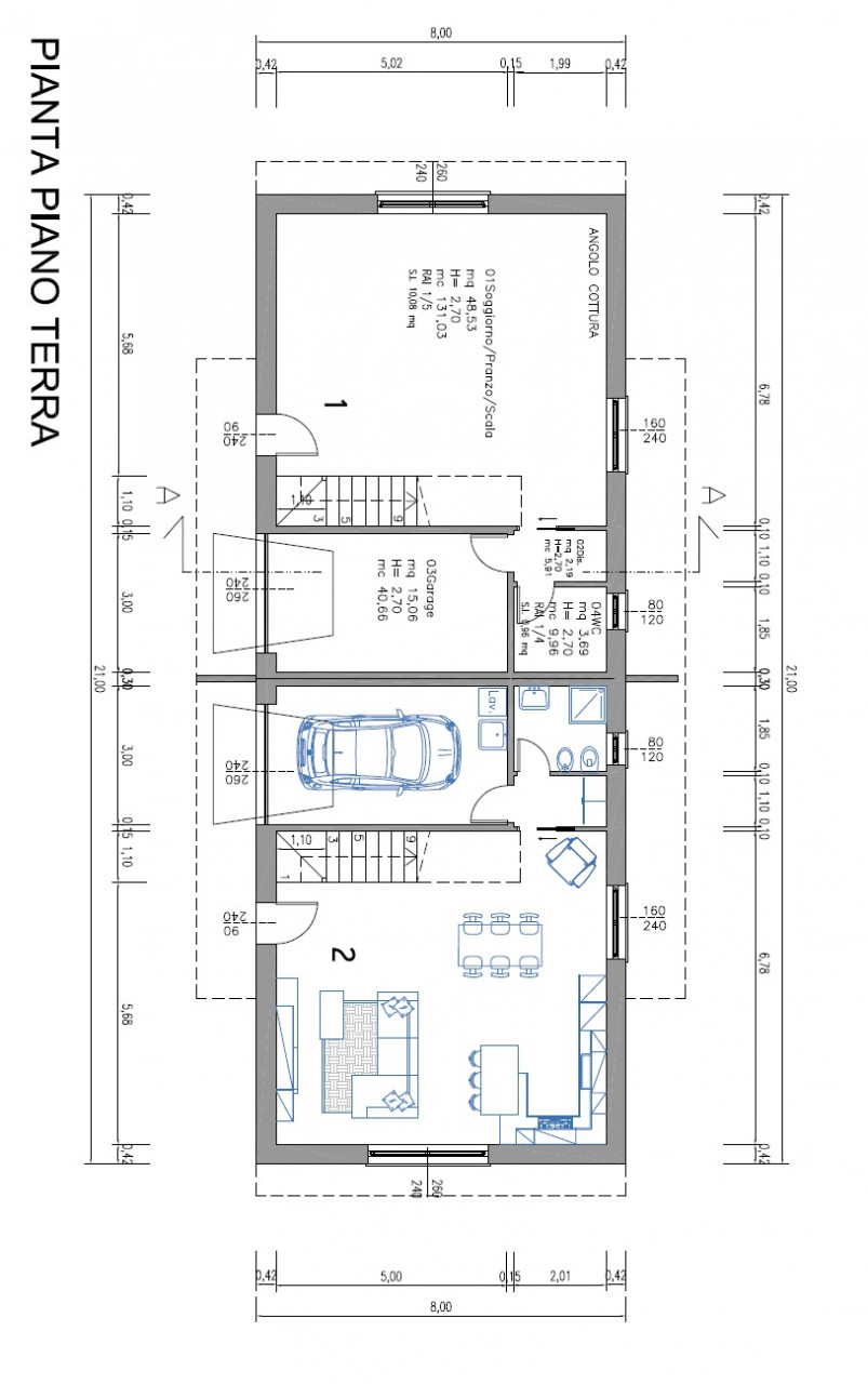
Piano terra: Zona giorno
Un luminoso ambiente open space di 50 mq accoglie il soggiorno e la cucina, con uscita diretta sul verde privato. Completano il livello il garage collegato internamente, un bagno/lavanderia finestrato e un comodo vano ripostiglio.

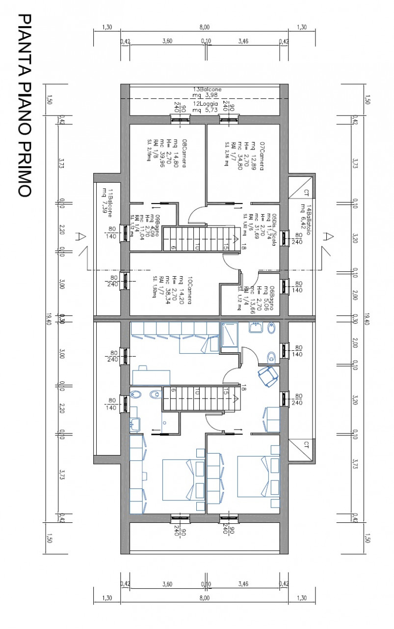
Piano primo: Zona notte
La camera padronale è servita da bagno finestrato privato e da una cabina armadio dedicata. Due ulteriori camere dalle generose dimensioni, un secondo bagno finestrato, tre terrazzi e un pratico spazio aggiuntivo sul vano scala, ideale come armadio a muro, completano il reparto notte.

Dotazioni e comfort:
Serramenti in PVC con triplo vetro a basso emissivo
Riscaldamento a pavimento
Tapparelle in alluminio elettriche
Impianto con pompa di calore abbinato a pannelli fotovoltaici
Sistema di ventilazione meccanica controllata
Capitolato di alta qualità con possibilità di scelta delle finiture
Classe energetica: A4

Richiesta economica:
Porzione "1" € 360.000
Porzione "2" € 380.000

Consegna prevista fine 2026
Nessun onere condominiale.

Servizi Nei Dintorni:
Farmacia 200 mt.
Bar 250 mt.
Supermercati 70 mt
Fermata Autobus 250 mt.
Scuola Primaria 800 mt.
Parrocchia 350 mt.
Padova Stazione 10 km

Per maggiori informazioni, piantine e visite Agenzia Immobiliare I.V.S. Taggì di Sopra - Villafranca Padovana, tel. 049.9075614 (rif.TT220)

"Per motivi di riservatezza, la mappa non mostra l’esatta posizione dell’immobile, ma un indirizzo corrispondente a un punto situato nelle sue vicinanze."

  • Prezzo 360.000 €
  • Mq 180
  • Comune Villafranca Padovana
  • Contratto Vendita
  • Camere 3
  • Bagni 3

Ambienti

Soggiorno angolo cottura
Poggioli 3
Ripostigli 1
Lavanderia
Garage
Posto auto
Giardino

Livelli & comfort

Livelli Piano terra , Primo piano
Aria condizionata
Riscaldamento autonomo
Riscaldamento a pavimento
Ingresso indipendente
Predisposizione allarme

Condividi